Contact the agent if you'd like further information.
Retail for Lease in South Brisbane
Reach 9,000 consumers within 4 min walk
- Building: 54-158m²
Next Steps:
Enquire with agentFuture-proof your business by locating in the heart of the Kurilpa Precinct in South Brisbane, a major urban regeneration area earmarked for immense growth and investment. Multiple retail tenancies available to lease for the first time at Brisbane 1, a stylish 3-tower mixed-use development built in 2019. With 608 residential units sitting above and thousands more just a few steps away, this is your chance to get into the precinct early to fulfil increasing local consumer demand. Capture this rapidly growing audience by offering convenience, lifestyle and entertainment services.
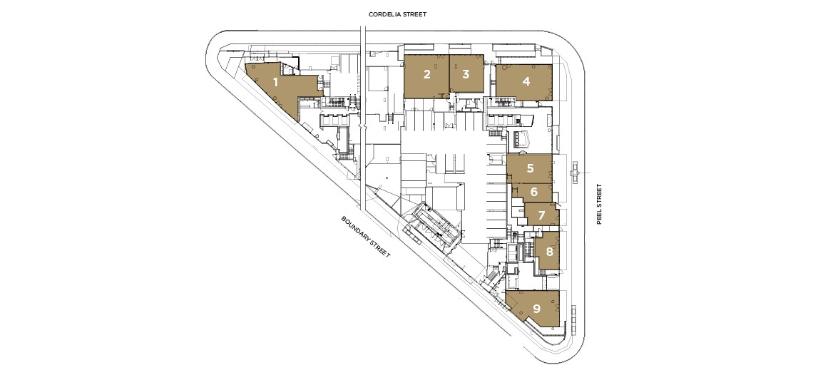
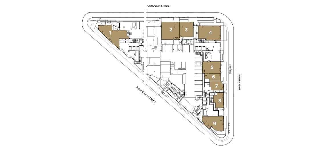
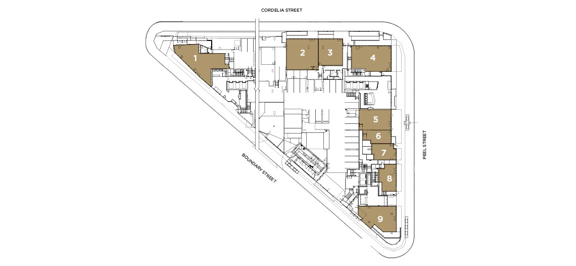
Retail 1: 163 sqm with Boundary Street entrance, soaring ceiling height and exclusive use of WC amenities
Retail 2: 149 sqm with Cordelia Street entrance, shared WC amenities
Retail 3: leased to premium personal training gym
Retail 4: under offer to high-end Chinese restaurant
Retail 5: 101 sqm with Peel Street entrance, shared WC amenities
Retail 6: 55 sqm with Peel Street entrance, share WC amenities
Retail 7: 56 sqm with Peel Street entrance, shared WC amenities
Retail 8: 63 sqm with Peel Street entrance, shared WC amenities
Retail 9: 131 sqm with Peel Street entrance and exclusive outdoor terrace on Boundary St, shared WC amenities
Each tenancy comes with one dedicated, secure carspace.
What we love:
• Location, location, location: Across the river from Brisbane CBD and directly adjacent to the future Olympics Precinct, South Brisbane offers the best of all worlds. Expansive riverfronts, thriving cultural and dining precincts, and stunning parklands make it a destination for residents and visitors alike. You could capture this audience.
• It's all about the people: South Brisbane ranks among Brisbane's top 10 fastest-growing suburbs for the next two decades. Building height limit increases will add more than 10,000 new dwellings (26,000 new residents) to South Brisbane's current population of 16,000. With a higher population density than the CBD, your customers will be in walking distance so you can focus more on growing your business than fretting over available car spaces!
• You could lead the way: being amongst the first tenants here gives you a first mover's advantage, along with the opportunity to set the tone for all future businesses establishing a presence in the Kurilpa Precinct. With vacant possession offered today, you could start your fitout tomorrow.
Please contact Kim or Julie to discuss how you could be an integral part of this inner-city renewal.
54 - 158m²
Next Steps:
Enquire with agentAgents
- Loading...
